Der Stadtbezirksbeirat Pieschen ist immer noch auf der Suche nach einer Interimslösung für seine monatlichen Beratungen. Das Rathaus Pieschen wird saniert. Der erste Bauabschnitt soll zwar Ende November 2022 abgeschlossen sein, ob der Bürgersaal dann wieder genutzt werden kann, ist noch nicht sicher. Die Abrissarbeiten für den neuen Fahrstuhl könnten die Nutzbarkeit beeinträchtigen, hieß es. So war am 5. April erstmals die Kleingartenanlage „Sommerfrische“ Gastgeber für die Beratung. Das Vereinsheim ist technisch gut ausgestattet. „Wir führen hier auch regelmäßige Schulungen durch“, erläuterte Vereinsvorsitzende Karla Händler. So sei es für den Verein kein großer Aufwand. Thomas Grundmann, Leiter des Stadtbezirksamtes, bedankte sich und kündigte schon mal an, dass man sich wieder melden würde.
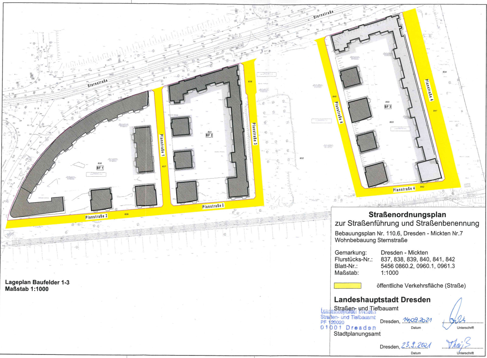
Neue Straßennamen für Wohngebiet „Am Elbbogen“
In der Sternstraße in Mickten sollen bis Ende 2025 etwa 533 neue Wohnungen entstehen. Das Projekt hat den Namen Elbbogen Dresden. Bauherr ist die Sternstraße Dresden Grundstücks GmbH mit Sitz in Gera. Im ersten Bauabschnitt entstehen 65 Drei-Zimmer-Wohnungen und 66 Vier-Zimmer-Wohnungen. Auf dem rund 25.000 Quadratmeter großen Grundstück sind vier sogenannte Planstraßen verzeichnet. 
Bereits vor der Sitzung waren Vorschläge von den Beiräten gesammelt worden. Das zuständige Amt für Geodaten und Kataster hatte diese bewertet. Bei Elbbogen, Elbdeichweg, Zum Elbblick, Zur Elbaue gab es den Hinweis, dass es in Dresden bereits elf Straßennamen mit „Elb…“ gibt. Franziska Lordick (Grüne) und Rebecca Overmeyer (SPD) plädierten für Frauennamen. Diese seien dresdenweit immer noch unterrepräsentiert. „Frauen, die in Dresden oder Sachsen etwas bewirkt haben, kann man auf diese Weise ehren“, verwies Overmeyer darauf, dass es nicht zwingend historische Personen aus dem Stadtbezirk Pieschen sein müssten. So gab es gegen Wilhelmine Kähler (1864-1941), die sich in der Gewerkschaftsbewegung engagiert hatte, keine Einwände (18 mal Ja). Sie hat in der Herbststraße in Mickten gewohnt.
Irena Rüther-Rabinowicz (1900-1979) war eine Malerin, ist in Köln und Chemnitz aufgewachsen und kam 1916 nach Dresden.1934 wurden ihr als Jüdin sowie ihrem Ehemann Berufs- und Ausstellungsverbot von den Nationalsozialisten erteilt. Ihrer Deportation nach Theresienstadt entging sie im Februar 1945 nur durch die Bombardierung der Stadt Dresden. Einigen Beiräten verwiesen in der Diskussion auf die schwierige Schreibweise und den fehlenden Bezug zu Pieschen. (11 Ja, 7 Nein, 1 Enthaltung).
Als dritten Namen brachte Christoph Böhm (CDU) den ehemaligen Gemeindevorstand von Kaditz, Christian Friedrich Findeisen (1856-1930), ins Gespräch. „Besondere Anerkennung habe er sich als Vorsitzender des 1903 gegründeten ‚Bezirksvereins der Dresdner Nordwestvorstädte Kaditz, Mickten, Trachau und Übigau‘ erworben, der die Interessen der ehemaligen Vororte gegenüber der Stadt Dresden vertrat“, weiß der Stadtteilhistoriker Klaus Brendler zu berichten. (17 mal Ja).
Der Stadtbezirksbeirat hat für die Straßennamen in seinem Bezirk das Vorschlagsrecht. Die abschließende Entscheidung trifft der Stadtrat. 
Zustimmung für Grundstücksverkauf in Kaditz
Mit zehn Ja- und sieben Nein-Stimmen bei 2 Enthaltungen stimmten die Stadtbezirksbeiräte dem Verkauf eines 265.000 Quadratmeter großen Grundstücks in der Kötzschenbroder Straße Kaditz zu. Es ist bisher verpachtet und wird von Schaffer Mobil, einem seit 1990 bestehenden Familienunternehmen rings um das Thema mobiles Reisen, genutzt. Der Name des Käufers ist in den Vorlagen üblicherweise nicht genannt. In der Diskussion wurde jedoch mehrfach auf das Unternehmen mit rund 70 Mitarbeitern und seine Erfolgsgeschichte verwiesen. Ein fünf Meter breiter Streifen entlang der Straße verbleibe bei der Stadt für den möglichen Ausbau der Straße. Grüne und Linke plädierten für eine Erbpacht-Lösung und brachten grundsätzliche Einwände gegen den Verkauf kommunaler Flächen vor.
Projektförderung für Musikschule Goldenes Lamm
Mit 3.750 Euro unterstützt der Stadtbezirksbeirat Pieschen einen viertägigen Workshop für Kinder und Jugendliche zwischen 9 und 15 Jahren. Die Gesamtkosten, so Projektleiter Florian Manuel Fügemann, würden bei 9.750 Euro liegen. In dem Workshop mit dem Namen „Drum & Dance reloaded – Mir wird bunt vor Augen!“ werden sich die rund 40 Teilnehmer in den Osterferien kreativ mit Percussion und Tanz auseinander setzen. „Schlagzeug und Tanz haben mehr gemeinsam, als es auf den ersten Blick scheint. So kann man interdisziplinär und interaktiv voneinander profitieren und Neues entstehen lassen“, erläuterte Fügemann. Tanz- oder Musikschulunterricht seien keine Voraussetzung. Leichte Vorkenntnisse sind wünschenswert. Mehr als 30 Anmeldungen würden bereits vorliegen. Am letzten Tag des Workshops sei eine öffentliche Bühenperformance geplant.
[box style=’info‘]
Zum Thema:
- Sitzung vom 5. April: Tagesordnung, alle Dokumente, Abstimmungsergebnisse
- Stadtbezirksbeirat Pieschen – Mandatsträger, Sitzungen, Vorlagen [/box]
Berichte aus dem Stadtbezirksbeirat Pieschen – eine Leistung der Redaktion von Pieschen Aktuell im Auftrag des Stadtbezirksamtes Pieschen der Landeshauptstadt Dresden.





